all
built
plans
BORDERS
studio
Contact
all
built
plans
BORDERS
studio
Contact
VHSTUDIO
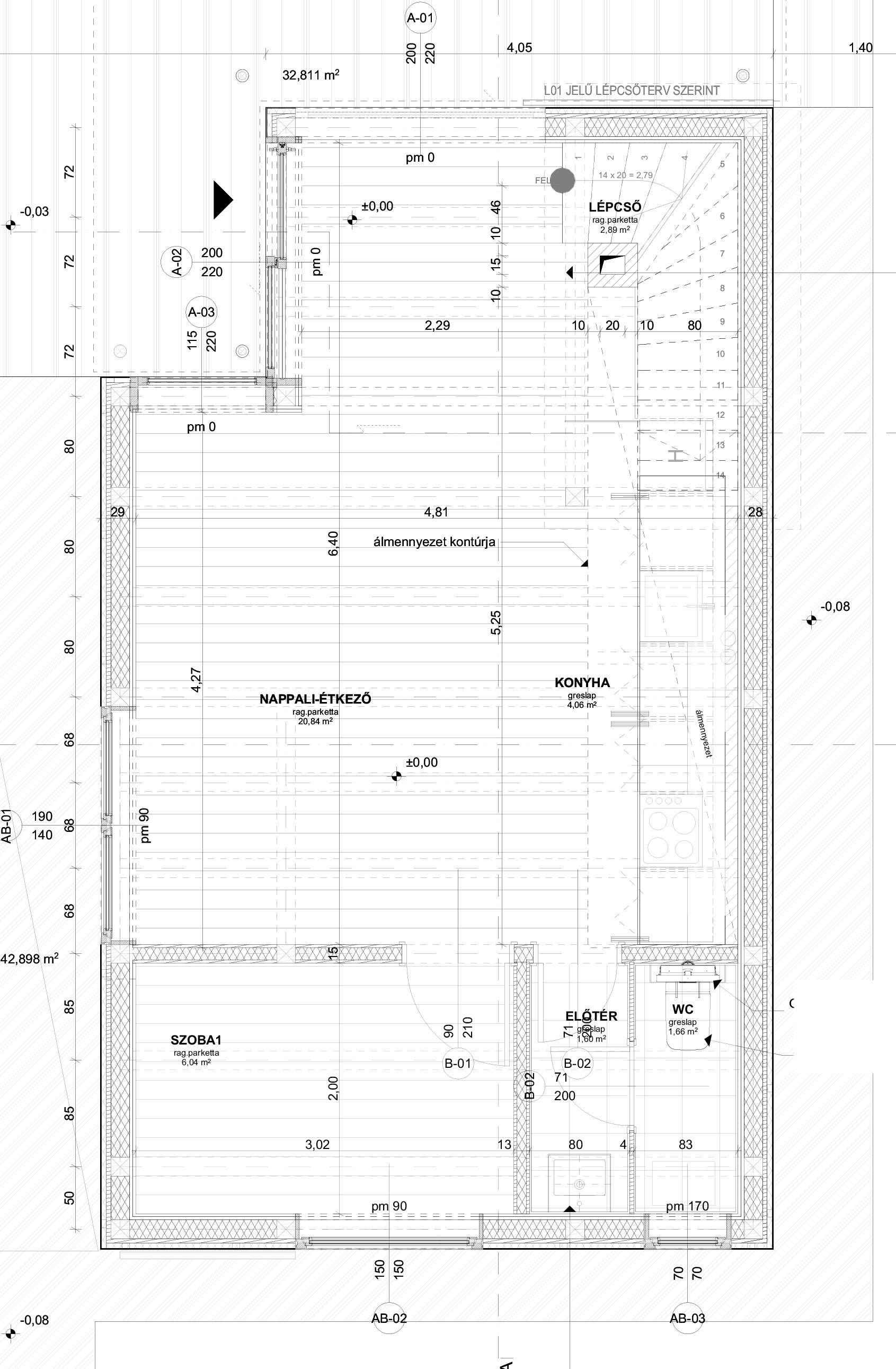
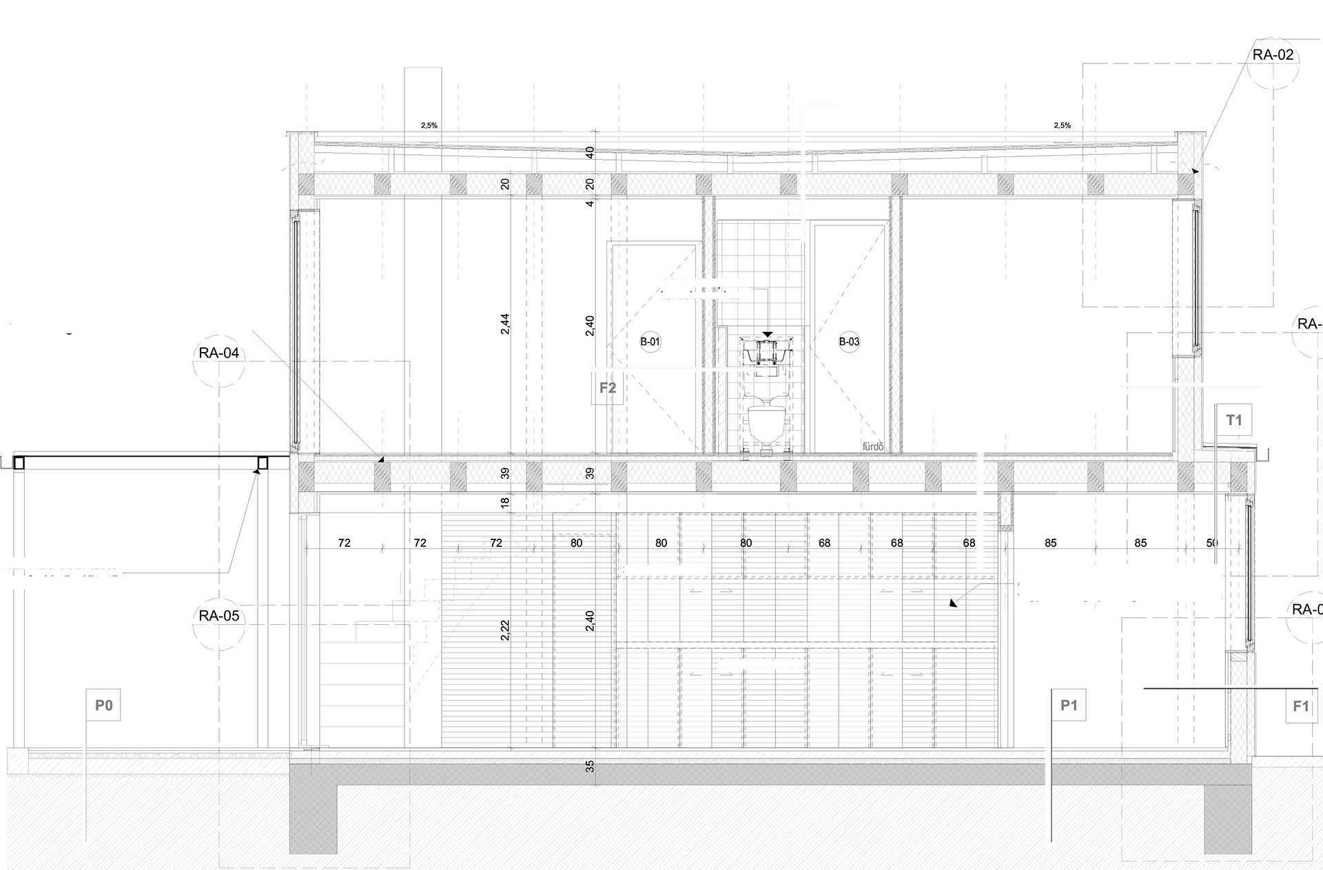
weekend house reconstruction
SIÓFOK, HUNGARY
weekend house
Architects: Tamás Herczeg, János Vági
Area: 62 m2
↑
Back to Top