all
built
plans
BORDERS
studio
Contact
all
built
plans
BORDERS
studio
Contact
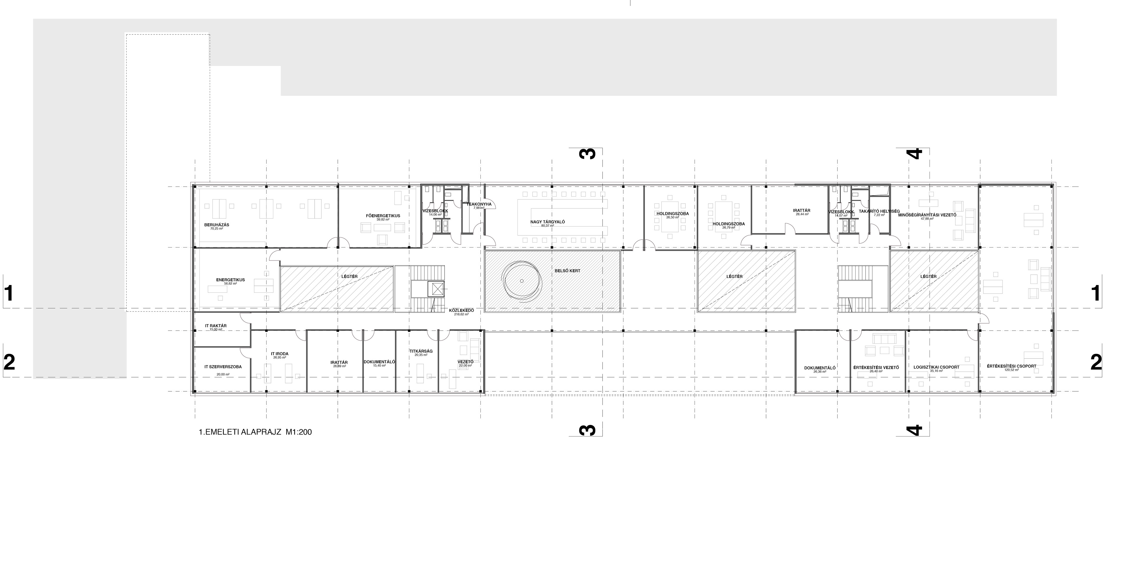
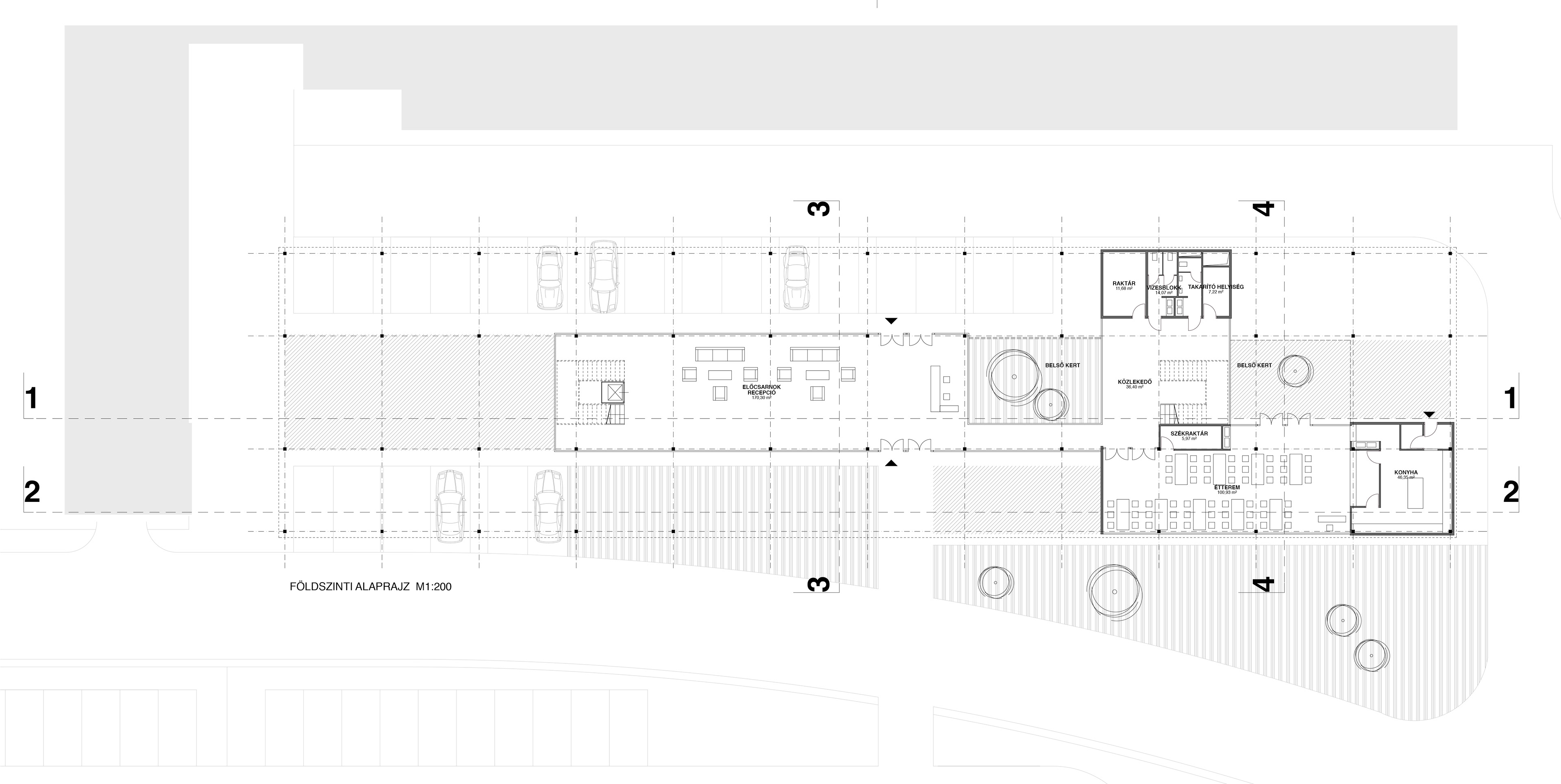
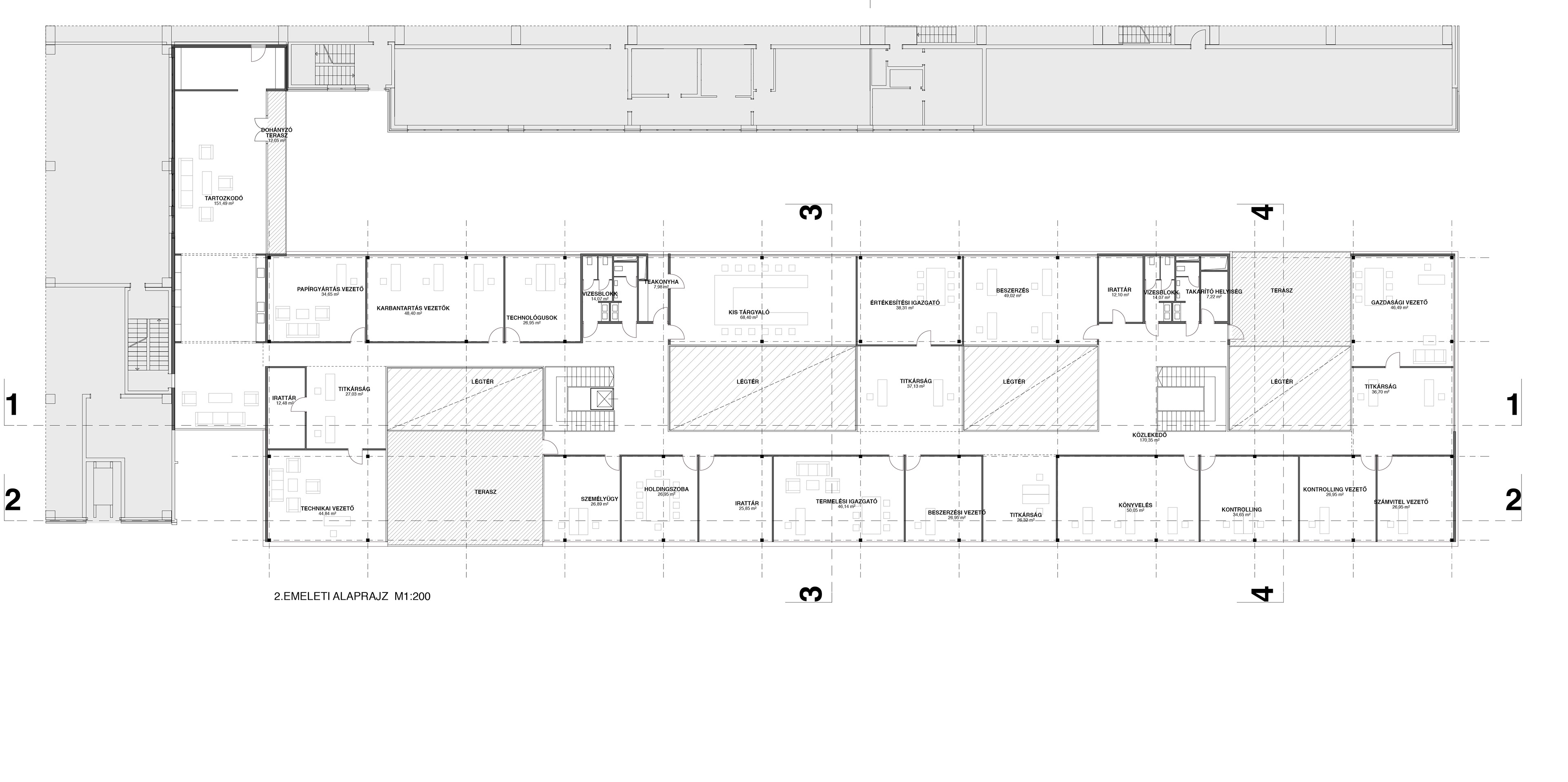
VHSTUDIO
PAPER FACTORY NEW OFFICE BUILDING
DUNAÚJVÁROS, HUNGARY
competition_1st prize
Architects:Tamás Szentirmai, János Vági
Area: 3100 m2
↑
Back to Top