all
built
plans
BORDERS
studio
Contact
all
built
plans
BORDERS
studio
Contact
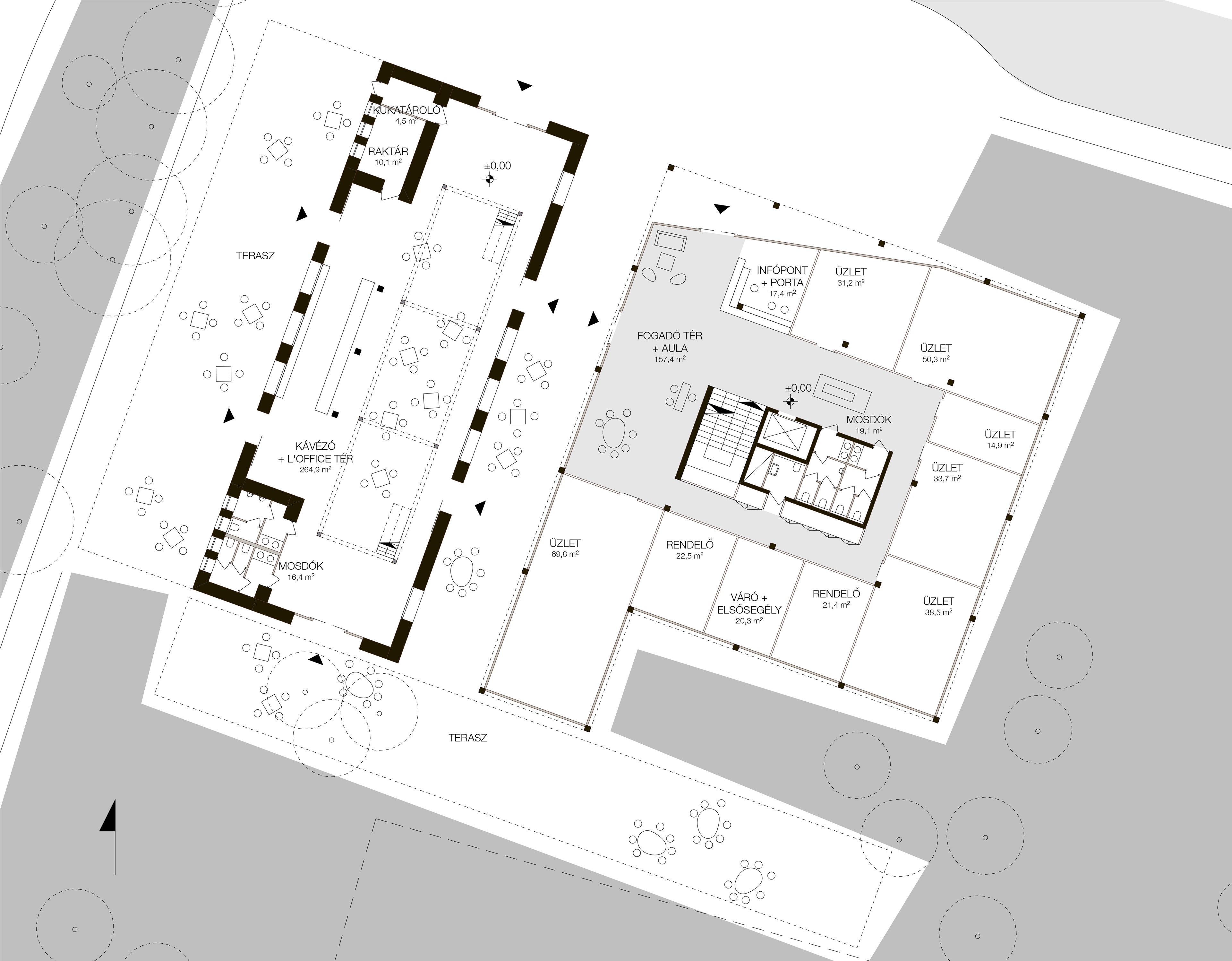
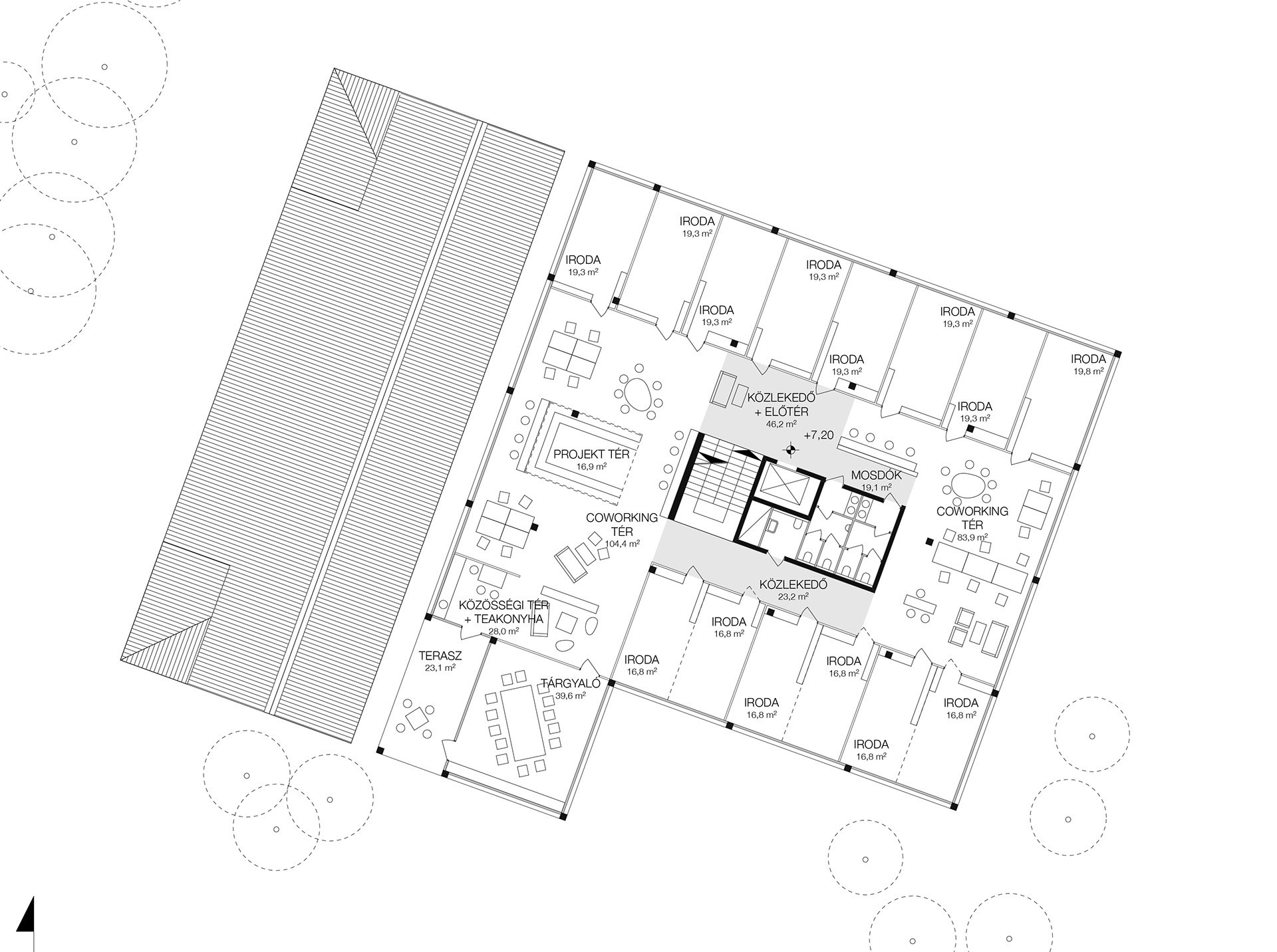
VHSTUDIO
GRAPHISOFT NEW OFFICE BUILDING
BUDAPEST, HUNGARY
competition_2nd prize
Architects: Péter Janesch,Tamás Herczeg, Tamás Szentirmai János Vági
Co-designer: Noémi Varga
Area: 3580 m2
↑
Back to Top