all
built
plans
BORDERS
studio
Contact
all
built
plans
BORDERS
studio
Contact
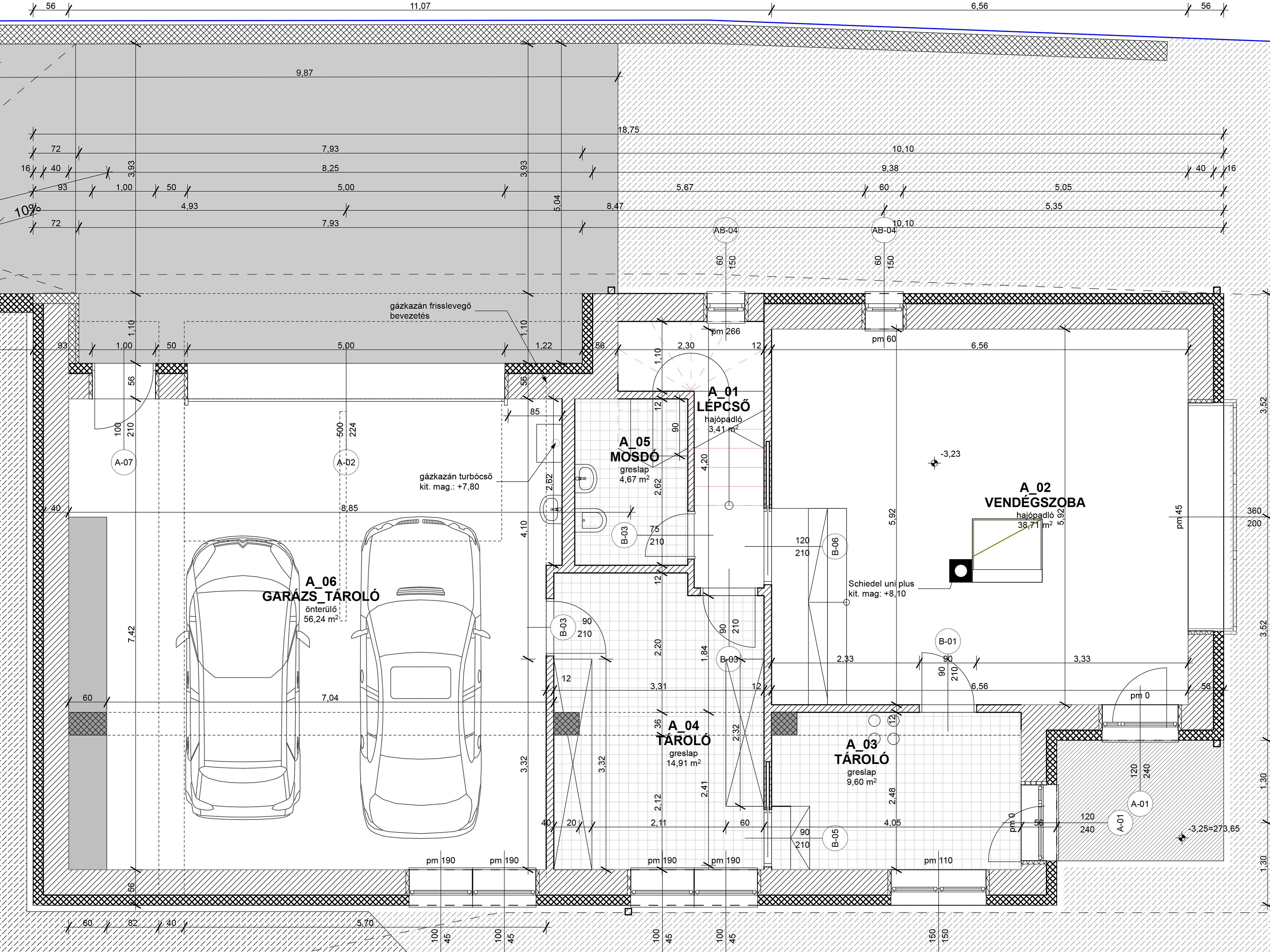
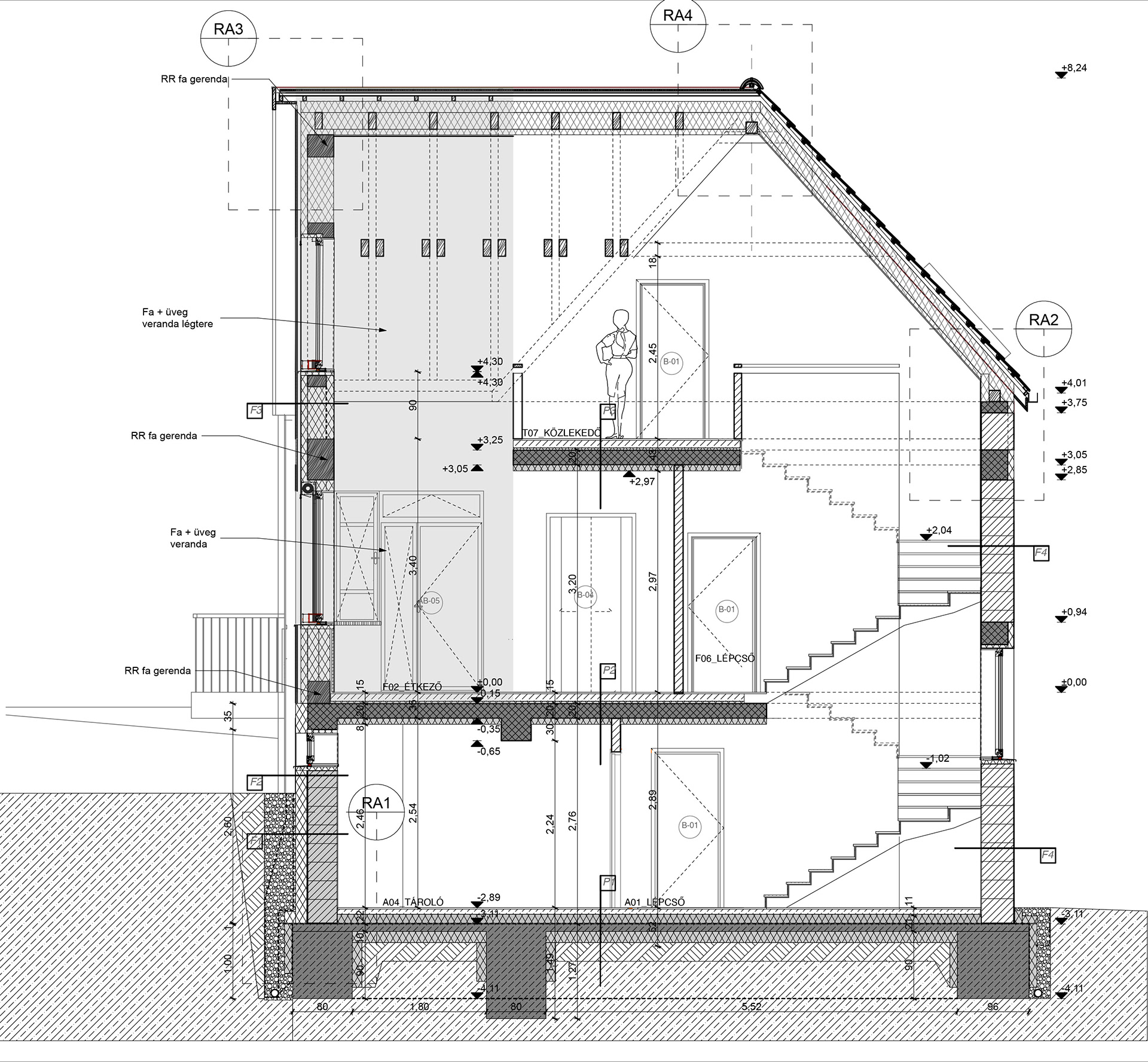
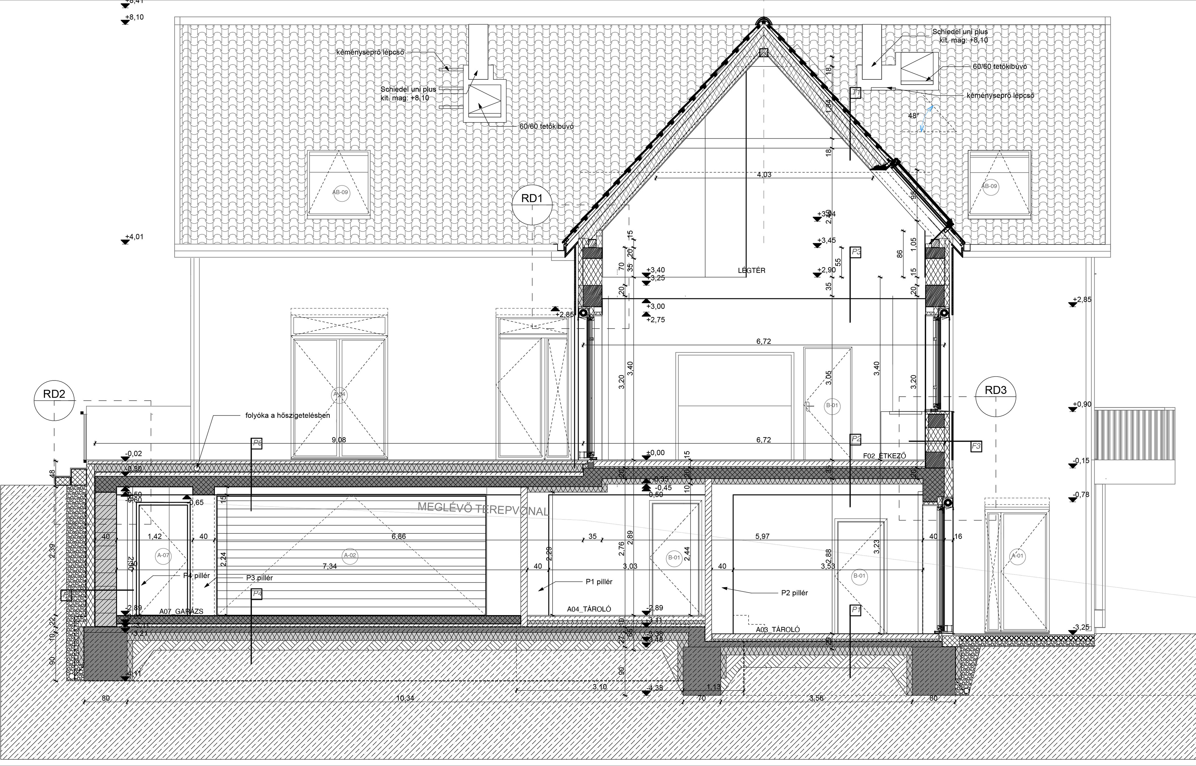
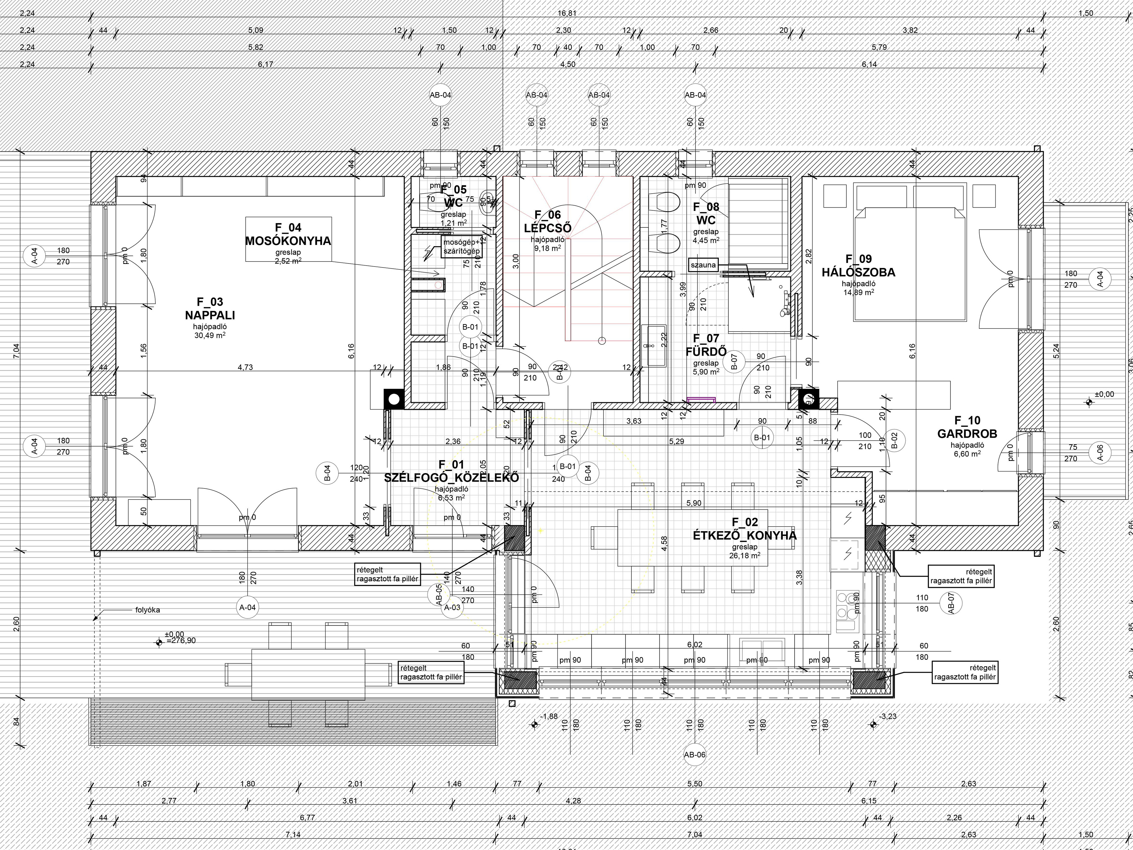
VHSTUDIO
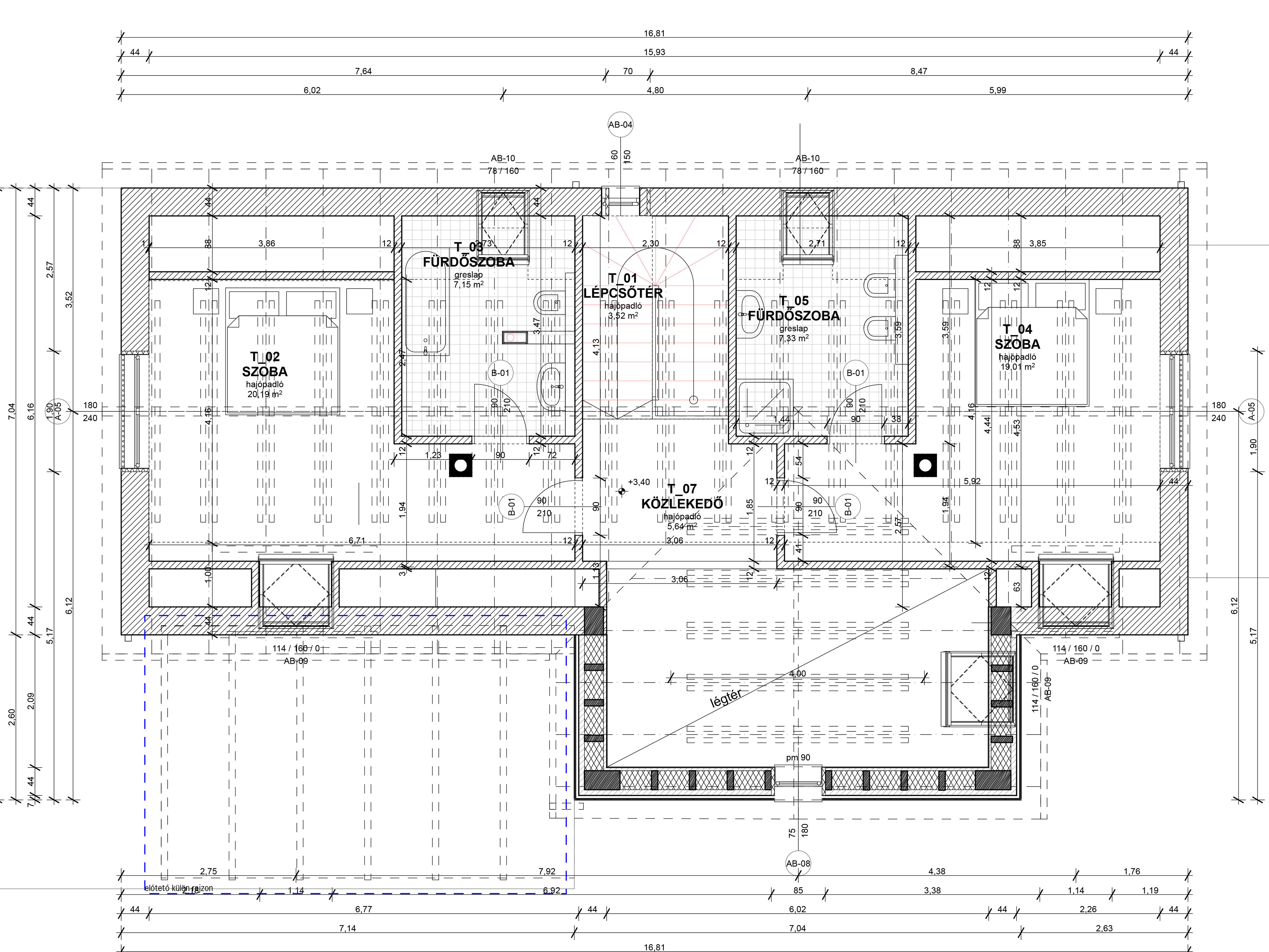
FAMILY HOUSE
SOPRON HUNGARY
family house
Architects: Tamás Herczeg, János Vági
Area: 255 m2
↑
Back to Top