all
built
plans
BORDERS
studio
Contact
all
built
plans
BORDERS
studio
Contact
VHSTUDIO
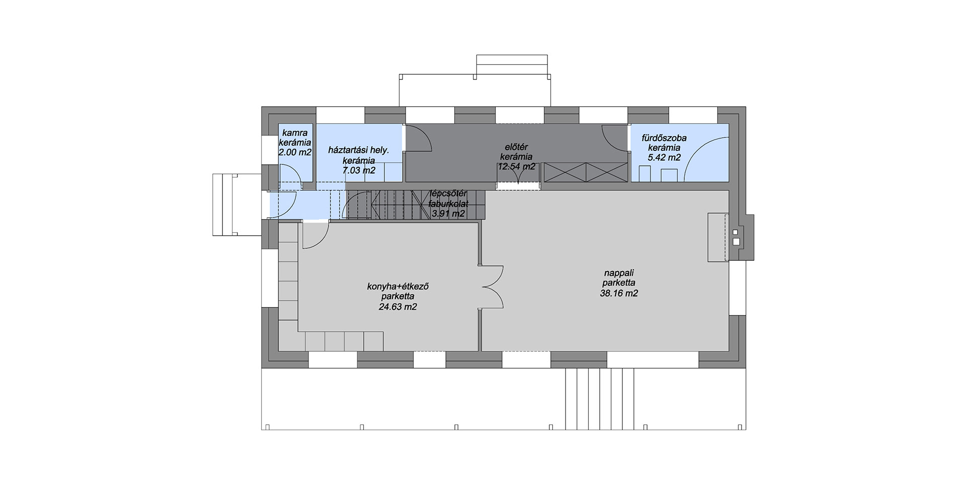
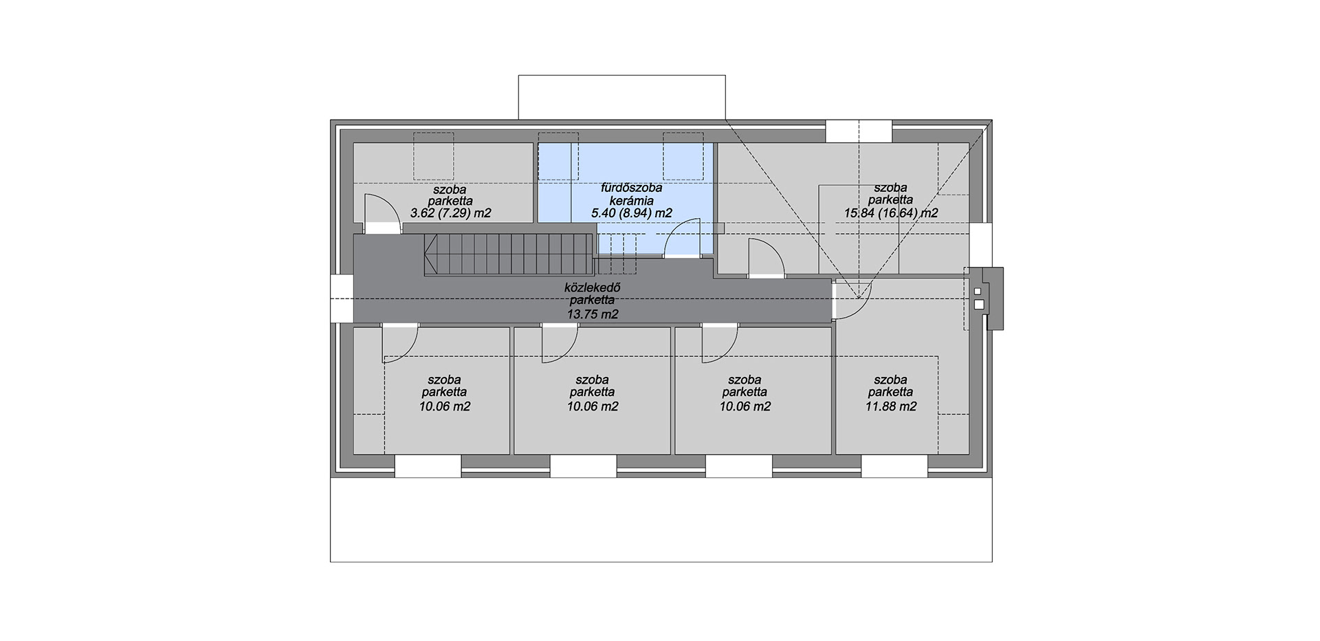
Family house
SOPRON HUNGARY
family house
Architects: Tamás Herczeg
Area: 235 m2
↑
Back to Top