all
built
plans
BORDERS
studio
Contact
all
built
plans
BORDERS
studio
Contact
VHSTUDIO
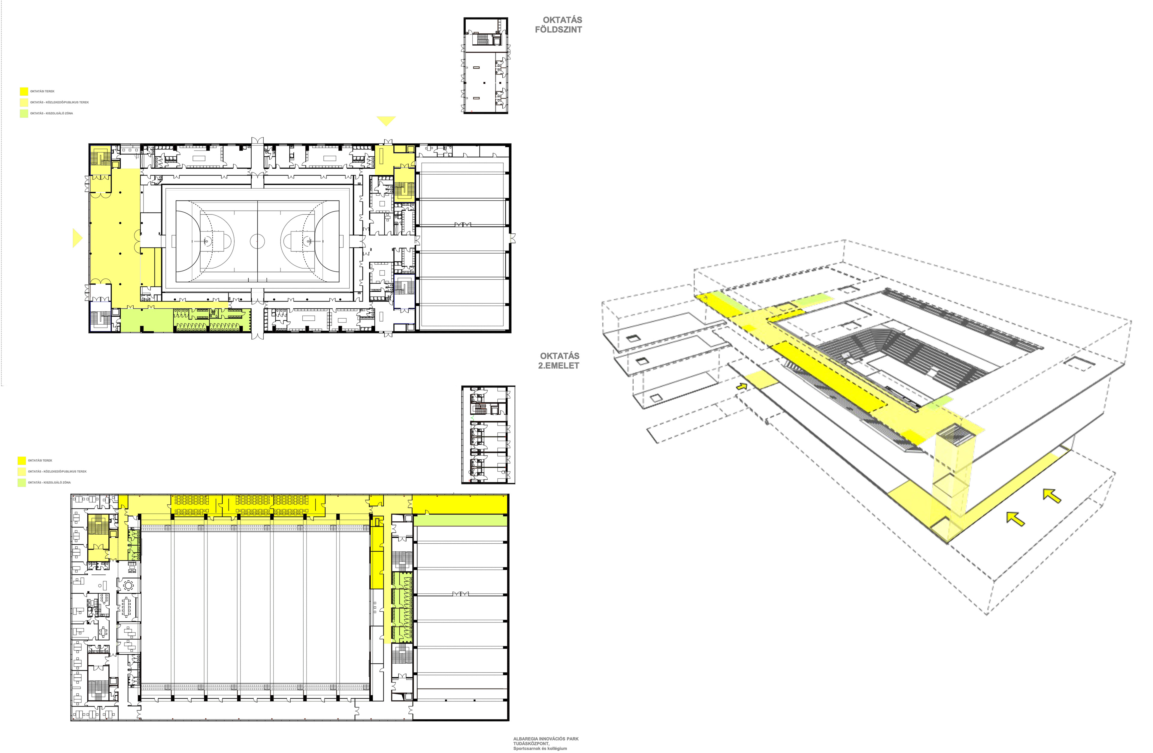
BASKETBALL ARENA
SZÉKESFEHÉRVÁR, HUNGARY
alba regia basketball arena and student apartment building
Architects: Tamás Herczeg, János Vági
Co-designer: Lilla Horváth
Area:15000 m2
↑
Back to Top